我們從業主需求切入,讓空間的實用性與藝術感相結合。視覺設計上,我們以深色為空間基調,并在深淺不同的灰色空間里,運用微水泥、石材、布料等不同材質,讓家有高級質感。硬裝簡約內斂,軟裝則更為活潑大方:在深色空間里點綴大地色系、米色系增加暖意,月球、星空等宇宙元素的加入,讓家更具有神秘悠遠。
我們從業主需求切入,讓空間的實用性與藝術感相結合。視覺設計上,我們以深色為空間基調,并在深淺不同的灰色空間里,運用微水泥、石材、布料等不同材質,讓家有高級質感。硬裝簡約內斂,軟裝則更為活潑大方:在深色空間里點綴大地色系、米色系增加暖意,月球、星空等宇宙元素 [閱讀全文∨]
時下最流行的裝修模式就是“輕裝修重裝飾”,對于整體家裝來說:窗簾則是其中很小的一個裝修項目。但是窗簾選擇的好,家裝的整體裝修效果圖都會提升起來。今天太原裝修網分享客廳窗簾裝修效果圖,教大家應該如何搭配合適自己家裝的窗簾。 [閱讀全文∨]
這是一套精裝房重裝的案例,業主沒有時間沒有經驗,但有獨特的品位和審美,喜歡個性鮮明的裝修風格,用了實木+黃銅,大面積的藍灰色和調和灰色,軟裝幾乎清一色的煙熏色橡木加胡桃木,打造一個獨樹一幟的簡約風裝修。 [閱讀全文∨]
這是一套建筑面積145㎡的現代簡約風格裝修案例,整體的裝修以原木色為主,這種整體的搭配完全符合現代簡約風格,通過簡單大方的空間設計,以簡脫繁,打造溫馨舒適的居住場所。 [閱讀全文∨]
這是一套建筑面積145㎡的現代簡約風格裝修案例,整體的裝修以原木色為主,這種整體的搭配完全符合現代簡約風格,通過簡單大方的空間設計,以簡脫繁,打造溫馨舒適的居住場所。 [閱讀全文∨]
小戶型房子越來越受年輕人喜歡了,一房一廳的房子要怎么裝修好呢?如果沒有合理裝修的話,房子會顯得很擁擠。今天小編分享的是一套41平一房一廳的,整體黑白灰色調搭配,非常的有質感。 [閱讀全文∨]
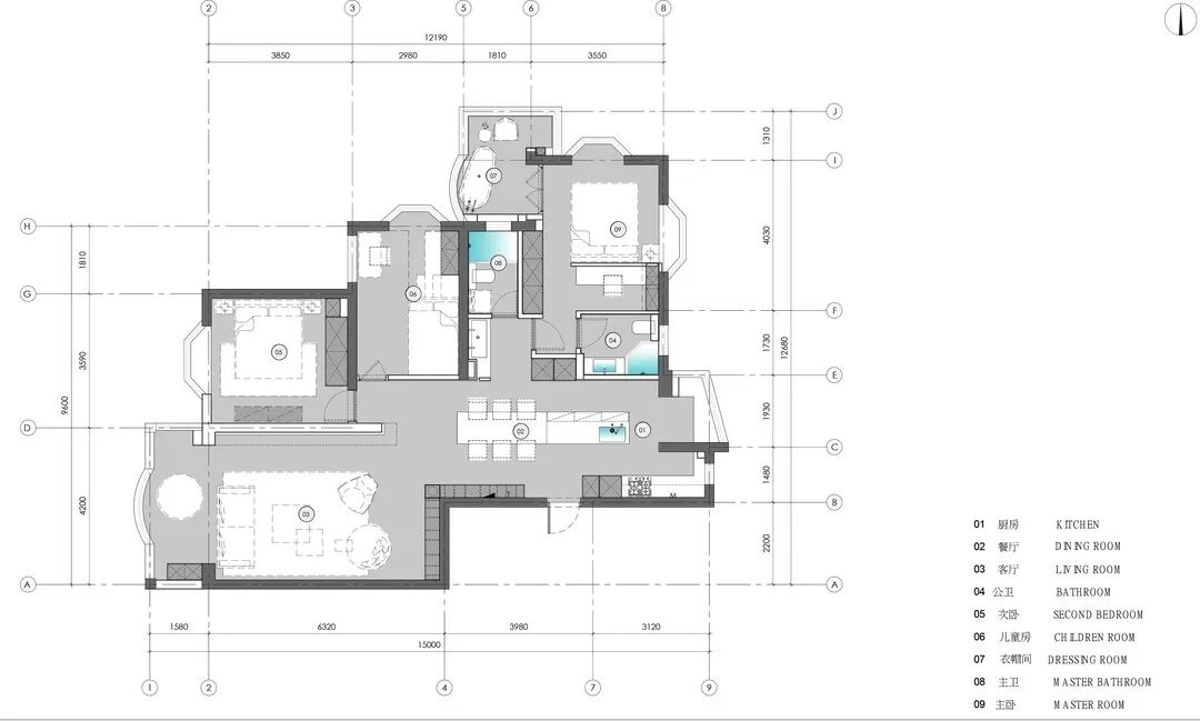
今天吉安總裁裝飾公司小編給大家分享的是這套115m2北歐三居案例,灰色與原木搭配,高端大氣,臥室設計也非常的特別,下面就一起來看看吧。 [閱讀全文∨]
現代簡約風在室內設計中可以有不同的呈現色彩呈現效果,有極簡白,有高級灰,有大氣黑,也有沉穩的棕色系。棕色,它不像亮色那樣耀眼,也不像黑色那樣大氣,但是它又著自己獨特的優雅和沉穩; [閱讀全文∨]
對于小戶型裝修的話題一直層出不窮,無非就是如何利用有限的小空間最合理化的裝修,所以無論在色彩選擇或者是空間布局上來說都比較講究。今天居然之家裝飾小編就帶大家來看看新一代的小兩口是如何將小戶型的房屋裝扮出屬于自己風格的。 [閱讀全文∨]
本案設計師在限定的空間形態中,以輕盈的黑白灰為底色,點薄荷藍綠、綴琥珀色等跳色,搭配大理石、金屬、琉璃、布藝等多樣材質,梳理出寧靜歡愉的生活氛圍。 [閱讀全文∨]
進門處有一個白色的玄關柜,很簡單的款式,但是掛放衣物足夠了,而且為了保持室內的隱私感做了一個玻璃的隔斷,白色的天花板,灰色的墻面,淺色木地板,簡單又美好。 [閱讀全文∨]
